Дом по адресу Старая Купавна, Надежды, за 18500000 р.

Адрес Старая Купавна, Надежды, 9А
Цена 18 500 000 р.
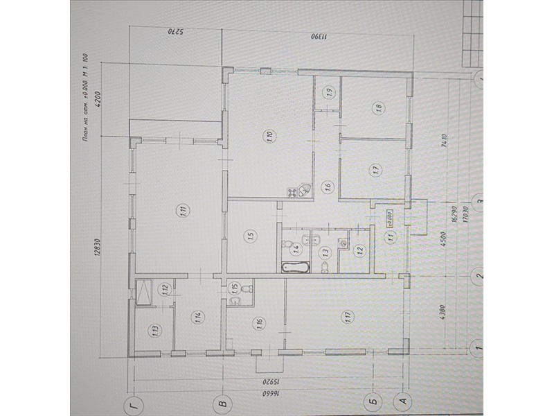
Площадь дома 237 м2, участка 8,5 м2
Кол-во комнат 8
Капитальный дом для круглогодичного проживания в частном секторе города, земля ИЖС. Удобный заезд с Горьковского шоссе. Все работы проводились строго по проектному плану, с жестким контролем качества строителем инженером. Сердце дома - Мощный качественный утепленный фундамент-плита с ребрами жесткости, стены - толстые пеноблоки плюс утепление по всему контуру. Толковая сбалансированная планировка где есть все для комфортного проживания большой семьи и встречи гостей: встроенный гараж, тех помещения, котельная, встроенная сауна, огромная утепленная веранда с большой площадью качественного остекления. Выделено и подключено 15 Квт электроэнергии (три фазы), своя собственная скважина с отличной питьевой водой, полностью проведен и подключен дом к газовой магистрали, в этом году планируется подключение и запуск. Дом на тупиковом проулке где движения автотранспорта полностью отсутствует, въезд на улицу через шлагбаум. Заинтересованным предоставим обзорное видео и дополнительное фото поэтапного строительства. В самом доме практически полностью оштукатурены все стены, без чистовой отделки.
Объявление № 23973699
Дата подачи:
22 марта 2026 г. 0:05
Дата обновления:
22 марта 2026 г. 0:05
Просмотров 8 Хотите продать быстрее?

Продавец
Агентство недвижимости:
0
email: 89629094565@mail.ru
Показать номер телефона
с 10.00 до 20.00
Пожаловаться
Комментарии:
Добавить